30/73
kisképek
Kilépés a vetítésből
másodpercenként
3
váltás
Bor apartmanok / Chopok-Jasná
Modern apartmanok közvetlenül Jasná sípályáitól 200 méterre - Szállás infó a portálon »
Feltöltve: 2023.09.14.
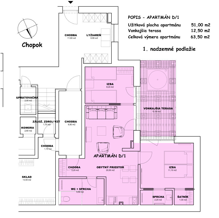
1-es "Sport" apartman | 4+1 fős
1-es "Sport" apartman | 4+1 fős
A galéria összes képe »